--   |  设为首页

帮忙装修网

中山

[切换]

北京丰台两居精装房改造,一个美食博主的家

来自:北京帮忙装修网 日期:2022-02-15 16:42:45 202622 次 分享到:
导读:
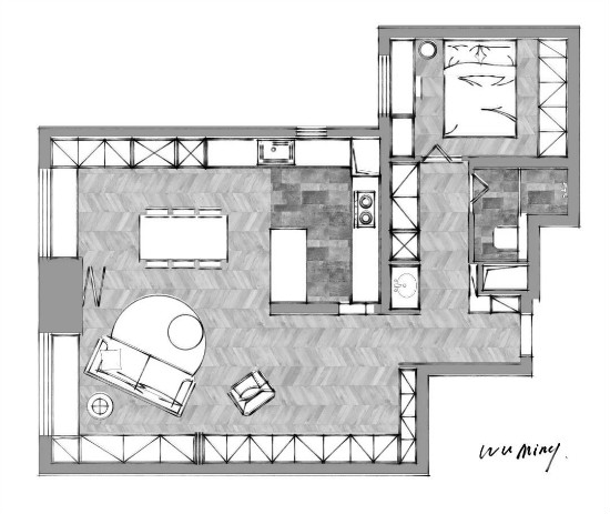
改造前的空间是标准的两居室精装房,每个房间都特别小,而且餐厅和厨房的采光条件较差,这可是一个美食博主绝对不能忍受的。来看看北京帮忙装修网的分享的改造案例。

女主一名美食博主,这是她和老公在北京的第一套房子,迫于高昂的房价,只能屈就买了一套不太理想的小户型。

1weixintupian_20190809112949.jpg

可能对别人来说,两室一厅的精装房已经很可以了,但是女主是一个对生活有要求的人,除了满足基本的使用需求,颜值也不能输,开放式厨房和能照进阳光的餐厅是必备啊,所以拿到钥匙的女主二话不说,一切砸了重新来!

房屋信息

坐标:北京丰台   面积:77㎡

户型:两居室

改造时间:8个月     改造费用:40万

2weixintupian_20190809113002.jpg

改造前的空间是标准的两居室精装房,每个房间都特别小,而且餐厅和厨房的采光条件较差,这可是一个美食博主绝对不能忍受的,于是女主提出了几点需求:开放式厨房和有自然光的餐厅;充足有序的收纳空间;满足父母或朋友偶尔小住的需求,但拒绝沙发床。

3weixintupian_20190809113013.jpg

解决方法:

1、拆除非承重墙,打造客餐厅一体的开阔空间;

2、储物功能分区管理,客厅、走廊、卧室各司其职,不放过每一寸空间;

3、  至于客卧,先卖个关子,往下看就知道啦~

01/ 玄关

面积虽小,五脏俱全

4weixintupian_20190809113020.jpg

整个家的改变从一进门就开始啦,因为讨厌千篇一律猪肝色的防盗门,设计师果断将其喷成了白色,空间整体的氛围也变得更加和谐。这里虽然面积不大,但玄关柜+鞋柜+穿鞋凳+墙面挂钩的组合搭配,让收纳功能丝毫不差事儿,回到家就可以快速解放双手。

5weixintupian_20190809113026.jpg

往里走,空间配色上的小心机就慢慢崭露出来了。内嵌的蓝色置物架打破了大白墙的乏味,既节省了空间,又可以作为厨房和客厅的隔断,颜值和实用都杠杠的。左边顶天立地的大书柜让家里的书籍都有了好去处,时刻保持整齐如一。

6weixintupian_20190809113030.jpg

今年大火的脏粉色让这个小角落看起来高级感十足,墙面置物架充分利用纵向空间,摆放上闷爷收藏的小玩意,让浓郁的艺术气息扑面而来。

02/ 客厅

别眨眼,要开始变形咯~

7weixintupian_20190809113038.jpg

砸掉非承重墙,将客厅与餐厨打通后,原本狭小的空间瞬间变得十分明亮。客厅没有安排主灯,通过射灯和壁灯的组合,恰到好处地营造出温馨浪漫的氛围。

8weixintupian_20190809113044.jpg

深蓝色的天鹅绒沙发散发着高贵优雅的气质,线条简约的小边几丝毫不占用空间,摆放上烛台、酒杯,随手一拍就是一张超美的ins风美照。

9weixintupian_20190809113051.jpg

靠窗的一侧被打造成了飘窗,借着窗外的好光景,一杯咖啡,一本书,一呆就是一下午。

10weixintupian_20190809113100.jpg

11weixintupian_20190809113109.jpg

沙发背后是一整面墙的储物柜,用来收纳各种日用品,再多杂物也不怕没地方放啦。更重要的是,这里暗藏玄机,分分钟就可以变身成为一个客卧:柜子内定制隐藏了一个1.5m×1.8m的标准双人床,挪走沙发,一个人就可以操作完成,就问你厉不厉害!

12weixintupian_20190809113118.jpg

在私密性方面设计师也做了充分的考虑,通过可移动墙面和玻璃隔断进行遮挡,拉上门,这里就是一个独立的小房间,空间利用率不止翻了一倍,客厅还是客卧想怎么切换随便你。

客厅中舍弃了传统的电视,一个隐藏的电动投影幕布让客厅和餐厨空间都可以360度无死角观影,同时还可以作为客卧的窗帘使用,妥妥的一物多用。

Tips:移动门的轨道主要是吊轨,下端用磁铁吸引固定,但是一定要专业人员安装,以保证安全性哦~

03/ 厨房&餐厅

开放+明亮是执念,必须满足

13weixintupian_20190809113127.png

作为一个美食博主的家,餐厅和厨房必须是主角,只有足够宽敞、足够明亮才能让女主大展拳脚,展示自己的十八般武艺啊~整个空间通过玻璃隔断与客厅划分,既满足了开放的需求,让视线可以无限延伸,又免去了烹炒煎炸时油烟的困扰,绝对是小户型的首选。

14weixintupian_20190809113133.jpg

餐厨以蓝色和木色为主色调,再融入些百搭的黑与白,整个空间看起来清爽利落。1.8m的长桌既满足了周末朋友们的聚会,又方便了闷爷的美食拍摄,不对称的餐椅则为用餐时光注入了一丝俏皮和活力。

15weixintupian_20190809113141.jpg

整面墙的橱柜采用了开放与封闭相结合的格局,双开门冰箱、蒸烤箱、洗碗机统统都嵌入了柜子里,常用的碗碟、调料等则被安排进了开放的隔板里,取用的时候一目了然,随时保持台面整洁。

16weixintupian_20190809113148.jpg

厨房的墙面选择了女主最爱的白色六角砖,超高的颜值让每天烹饪都有好心情。同时,设计师还细心的设计了高低台面,这对热爱做饭的女主来说实在太重要了,完美避免了长时间弯腰洗东西带来的不适感。

17weixintupian_20190809113155.jpg

灶台一侧的原始门洞被保留,摆放上一盆植物秒变画框,好看的让人挪不开眼。门洞旁边还预留了两个壁龛,用来摆放瓶瓶罐罐也是方便的不要不要的。

18weixintupian_20190809113203.jpg

除了烹饪台面,考虑到女主的职业和生活习惯,设计师贴心的额外增加了一个用来烘焙的mini岛台,台面下的收纳空间自然不能放过,面向厨房的一侧做成了柜体,而靠近餐厅的一侧则是开放式隔板,深度35cm,摆放上闷爷收藏的各式餐具,完全就是一个小型展示柜。

19weixintupian_20190809113208.jpg

岛台上还细心的安排是升降插座,不用的时候收到下面,每时每刻都要整整齐齐。

04/ 走廊

智取得来的洗衣房

20weixintupian_20190809113215.jpg

原始户型中的走廊仅仅起到连接两个空间的作用,这对于小户型来说着实有点浪费,于是设计师通过精打细算,改变了卧室门的位置,同时将卫生间的墙面稍微向后移动,竟妥妥的多出了一个洗衣区。

21weixintupian_20190809113222.jpg

靠墙的一侧依然是整面墙的储物柜,柜体内根据收纳需求进行了有效的划分,将每样物品分门别类的摆放,为生活增加更多便利。

05/ 卧室

你猜怎么着?这里没有床!

22weixintupian_20190809113230.jpg

卧室是一个3.6m×2.4m的空间,如果按照常规做法,只能放下一张床+一个衣柜,为了避免过于局促,设计师另辟蹊径,没有在卧室安排床,而是将整个空间的地面抬高10公分做成地台,再放上一个舒服的床垫,Ok啦~

23weixintupian_20190809113237.jpg

如此一来,窗边还能摆放上一张简单的木质边桌,方便偶尔的办公使用,堪称将空间利用到极致的典范,大写的优秀。

06/ 卫生间

干湿分离便利多

24weixintupian_20190809113244.jpg

卫生间面积缩小后,设计师果断将洗手台外移,实现了干湿分离,使用的时候互不干扰,那感觉别提多爽了。嵌入式的台面增加了10公分的防水条,完全不用担心水溅到墙上,完美!

25weixintupian_20190809113250.jpg

卫生间的墙面与厨房统一,六角形的小白砖看起来精致又不过分杂乱,简直是增加空间颜值的利器。壁挂式的马桶方便清洁,马桶上方的壁龛通过木板分隔,收纳平时的洗漱用品完全足够了。

或拨打免费热线:13822775923

已成功招标53521